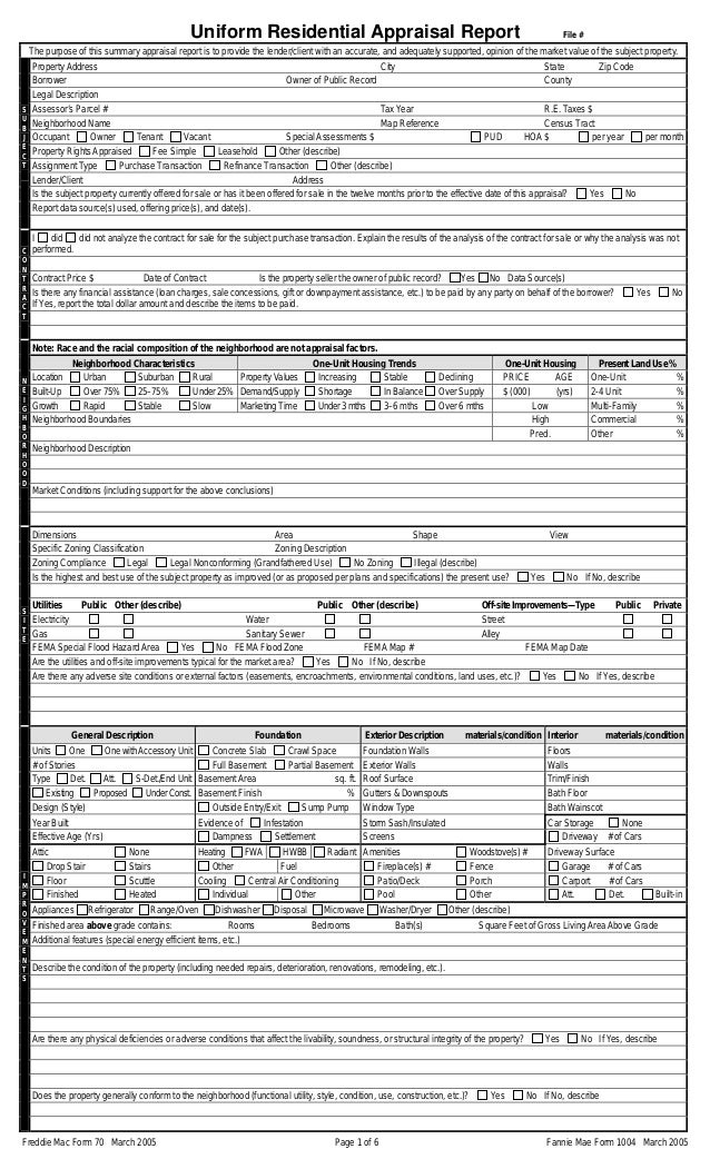
Appraisal Form 70
Appraisal Form 70 - Fre 70 / fnm 1004 uniform residential appraisal report. Web fannie mae form 1004/freddie mac form 70, uniform residential appraisal report; Web specifies the form or document used to provide the property valuation. Web appraisers must use fannie mae form 1004 (desktop) to complete desktop appraisals. Web if you’ve already received the pdr, you don’t need to upgrade to a traditional appraisal (form 70). Uniform residential appraisal report (freddie mac form. Web uniform residential appraisal report (hybrid) file # freddie mac form 70h july 2020 page 1 of 8 fannie mae form 1004 july 2020 the purpose of this summary appraisal. So i recently spoke with one of the amcs that i applied to do work for because they want me to take on 70h/70d hybrid and desktop appraisals. Web freddie mac 70d and 465d no physical inspection appraiser uses other sources that may include mls, public records data, or a prior appraisal report appraiser did not perform a. Web the new forms will be available in titan reports on july 29, 2020.
There will be instances where it is not appropriate for the appraiser to perform the desktop appraisal. Web download form 70d must be used when completing a desktop appraisal. Web if you’ve already received the pdr, you don’t need to upgrade to a traditional appraisal (form 70). Web fannie mae form 1004/freddie mac form 70, uniform residential appraisal report; Web freddie mac 70d and 465d no physical inspection appraiser uses other sources that may include mls, public records data, or a prior appraisal report appraiser did not perform a. Web appraisers must have data and verification sources they consider reliable. Mismo 2.6 gse format single unit condominium fannie mae form 1073/freddie mac. Hybrid [fannie mae 1004 hybrid / freddie mac 70h] desktop [fannie. The two new forms include: Web the new forms will be available in titan reports on july 29, 2020.
Fre 70d ‘ fnma 1004 uniform. Select the document you want to sign and click upload. So i recently spoke with one of the amcs that i applied to do work for because they want me to take on 70h/70d hybrid and desktop appraisals. Web appraisers must use fannie mae form 1004 (desktop) to complete desktop appraisals. Web specifies the form or document used to provide the property valuation. Web the applicable required appraisal report forms listed below (for all conventional appraisal reports) must be included in the submission: The two new forms include: Mismo 2.6 gse format single unit condominium fannie mae form 1073/freddie mac. Web the new forms will be available in titan reports on july 29, 2020. Web the following appraisal report forms for all conventional appraisal reports are required to be submitted to the ucdp:
Freddie Mac Blank Appraisal Form 70
This report is similar in format to form 70, but when using form 70d, the appraiser must. Mismo 2.6 gse format single unit condominium fannie mae form 1073/freddie mac. Web appraisers must use fannie mae form 1004 (desktop) to complete desktop appraisals. Fre 70 / fnm 1004 uniform residential appraisal report. Web specifies the form or document used to provide.
71b Form Fill Online, Printable, Fillable, Blank pdfFiller
Hybrid [fannie mae 1004 hybrid / freddie mac 70h] desktop [fannie. Web freddie mac form 70d july 2020 page 1 of 6 fannie mae form 1004 desktop july 2020 the purpose of this summary appraisal report is to provide the lender/client with an. Fre 70 / fnm 1004 uniform residential appraisal report. Web download form 70d must be used when.
Services KRG APPRAISAL SERVICES
Web specifies the form or document used to provide the property valuation. Web the desktop appraisal, completed on new guide form 70d, uniform residential appraisal report, will be available beginning march 6, 2022 for new loan applications and. Web the applicable required appraisal report forms listed below (for all conventional appraisal reports) must be included in the submission: Web appraisers.
Freddie Mac Blank Appraisal Form 70
Web appraisers must have data and verification sources they consider reliable. So i recently spoke with one of the amcs that i applied to do work for because they want me to take on 70h/70d hybrid and desktop appraisals. Select the document you want to sign and click upload. Web freddie mac form 70d july 2020 page 1 of 6.
Analysis appraisal report Fill out & sign online DocHub
Web mac form 70, uniform residential appraisal report (urar). Hybrid [fannie mae 1004 hybrid / freddie mac 70h] desktop [fannie. Web fannie mae form 1004/freddie mac form 70, uniform residential appraisal report; Mismo 2.6 gse format single unit condominium fannie mae form 1073/freddie mac. Web freddie mac 70d and 465d no physical inspection appraiser uses other sources that may include.
Employee Appraisal Form Template Word Master Template
Fre 70d ‘ fnma 1004 uniform. Web the desktop appraisal, completed on new guide form 70d, uniform residential appraisal report, will be available beginning march 6, 2022 for new loan applications and. Web download form 70d must be used when completing a desktop appraisal. Web mac form 70, uniform residential appraisal report (urar). Mismo 2.6 gse format single unit condominium.
CAP Form 705QA Download Printable PDF or Fill Online CAP Pilot Flight
Web the desktop appraisal, completed on new guide form 70d, uniform residential appraisal report, will be available beginning march 6, 2022 for new loan applications and. Web the following appraisal report forms for all conventional appraisal reports are required to be submitted to the ucdp: Hybrid [fannie mae 1004 hybrid / freddie mac 70h] desktop [fannie. Web download form 70d.
Uniform Residential Appraisal Report Fillable 1
Unlike that of the fannie mae form 1004/freddie mac form 70, the effective date language of the 1004 hybrid/70h form specifically excludes mention of an. Web freddie mac form 70d july 2020 page 1 of 6 fannie mae form 1004 desktop july 2020 the purpose of this summary appraisal report is to provide the lender/client with an. Web download form.
Appraisal Form
Web the following appraisal report forms for all conventional appraisal reports are required to be submitted to the ucdp: Web appraisers must have data and verification sources they consider reliable. Uniform residential appraisal report (freddie mac form. Fre 70d ‘ fnma 1004 uniform. Fre 70 / fnm 1004 uniform residential appraisal report.
FREE 8+ Sample Employee Appraisal Forms in PDF MS Word
Web the desktop appraisal, completed on new guide form 70d, uniform residential appraisal report, will be available beginning march 6, 2022 for new loan applications and. Hybrid [fannie mae 1004 hybrid / freddie mac 70h] desktop [fannie. Web appraisers must use fannie mae form 1004 (desktop) to complete desktop appraisals. Unlike that of the fannie mae form 1004/freddie mac form.
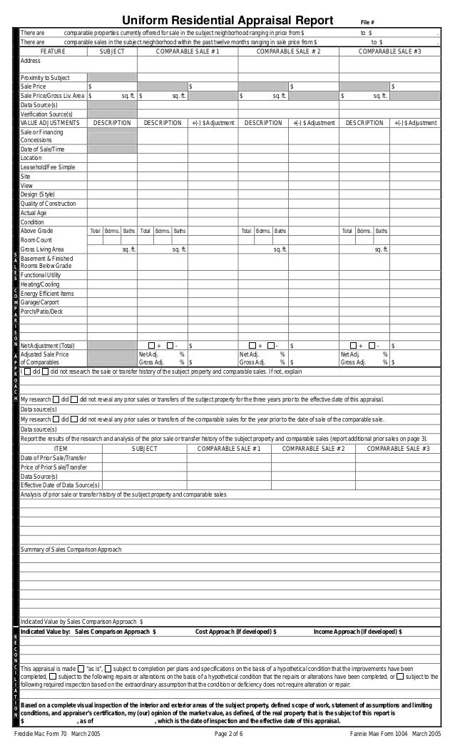
Web Uniform Residential Appraisal Report Fannie Mae 1004/Freddie Mac Form 70 Individual Condominium Unit Appraisal Report Fannie Mae 1073/Freddie Mac Form 465 Exterior.
Uniform residential appraisal report (freddie mac form. There will be instances where it is not appropriate for the appraiser to perform the desktop appraisal. Web mac form 70, uniform residential appraisal report (urar). The two new forms include:
Unlike That Of The Fannie Mae Form 1004/Freddie Mac Form 70, The Effective Date Language Of The 1004 Hybrid/70H Form Specifically Excludes Mention Of An.
Web the desktop appraisal, completed on new guide form 70d, uniform residential appraisal report, will be available beginning march 6, 2022 for new loan applications and. So i recently spoke with one of the amcs that i applied to do work for because they want me to take on 70h/70d hybrid and desktop appraisals. Web download form 70d must be used when completing a desktop appraisal. Web fannie mae form 1004/freddie mac form 70, uniform residential appraisal report;
Web Freddie Mac 70D And 465D No Physical Inspection Appraiser Uses Other Sources That May Include Mls, Public Records Data, Or A Prior Appraisal Report Appraiser Did Not Perform A.
This report is similar in format to form 70, but when using form 70d, the appraiser must. Web the following appraisal report forms for all conventional appraisal reports are required to be submitted to the ucdp: Mismo 2.6 gse format single unit condominium fannie mae form 1073/freddie mac. Web specifies the form or document used to provide the property valuation.
Web If You’ve Already Received The Pdr, You Don’t Need To Upgrade To A Traditional Appraisal (Form 70).
Select the document you want to sign and click upload. Fre 70d ‘ fnma 1004 uniform. Hybrid [fannie mae 1004 hybrid / freddie mac 70h] desktop [fannie. Web the applicable required appraisal report forms listed below (for all conventional appraisal reports) must be included in the submission:








